Familiengeeignete 3 Zimmerwohnung, mit gutem Grundschnitt, leichter Sanierungsbedarf, auch als Anlegerobjekt

Lage: 1100 Wien | | Wien

Beschreibung

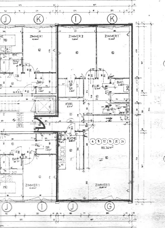
Eine gut und zentral begehbar geschnittene Drei-Zimmerwohnung mit leichtem Sanierungsbedarf. Diese Wohnung befindet sich im zweiten Liftstock eines Mehrparteienhauses. Sie ist eingeteilt in ein Vorzimmer, einer separaten Küche, Wohnzimmer (in die Knöllgasse), zwei Schlafzimmer (hofseitig), einem Bad mit Badewanne und einem extra Nassraum. Dieser Wohnung ist ein etwa 2 x 2 m² großes Kellerabteil zugeordnet. Die hier angegebenen Betriebskosten verstehen sich inklusive Heizung (zentral beheizt) und Warmwasser. Strom und andere Betriebskosten werden gesondert und nach Verbrauch abgerechnet. Der Fonds des Hauses ist positiv und es stehen keine größeren Arbeiten an. Es gibt die Möglichkeit sich auf einen PKW-Stellpatz anzumelden (Liste). Nahversorgung ist mit einem Supermarkt (2 Gehminuten, Hofer, oder Interspar/Gudrunstrasse), Apotheke, oder einem Obi in der nahe liegenden Triesterstrasse gegeben. Die Triesterstrasse bietet die Verbindung zur Autobahn A 2 in Richtung Süden und auf die A 23 (Südost-Tangente). Die öffentliche Verbindung bietet sich mit der U1 und und der U 4 und mit den Strassenbahnlinien 1, 6, 15, N 6 an. Der nächstliegende Bahnhof ist der Hautbahnhof. Eine neue Verbindung ab dem Mazleinsdorferplatz wird demnächst die U 2 anbieten. Die nächste Volksschule befindet sich in wenigen Gehminuten Entfernung, die GTVS Knöllgasse. Weiteres sind ein (Phönix-Gymnasium) und eine Realschule in kurzer Distanz zu erreichen. 

Dieses Objekt würde sich auch bestens als Anlegerobjekt zur Vermietung eignen, da es nicht dem MRG unterliegt. 

Haftungsausschluss/Courtagepassus

Bitte beachten Sie, dass wir aufgrund der Nachweispflicht gegenüber dem Eigentümer nur Anfragen mit Ihren vollständigen Kontaktdaten bearbeiten dürfen. 

Die seit dem Jahre 2014 geltenden EU-Richtlinien zum Fernabsatz- Auswärtsgeschäfte-Gesetz besagen, dass wir als Makler Objektunterlagen erst nach Ihrer Bestätigung, dass Sie unser Tätigwerden als Immobilienvermittler wünschen und über Ihre Rücktrittsrechte aufgeklärt wurden, zusenden dürfen. Aus diesem Grund erhalten Sie eine E-Mail, in der Sie diese Punkte bestätigen müssen. Erst danach werden Ihnen die dataillierten Unterlagen zum angefragten Objekt übermittelt. Es entstehen Ihnen durch diese Bestätigung keinerlei Kosten. Der Anspruch auf Provision, in der Höhe von 3% des Kaufpreises, zuzüglich Umsatzsteuer, entsteht erst mit der Rechtswirksmakeit des vermittelten Geschäfts. Für Vollständigkeit, Richtigkeit und akutelle Relevanz aller Angaben und Abmessungen wird keine Gewähr übernommen. Alle Angaben sind ohne Gewähr und basieren auf Informationen, die vom Eigentümer der Liegenschaft beziehungsweise Dritten zur Verfügung gestellt wurden. Möblierungspläne und Grundrisse dienen der besseren Übersichtlichkeit und Raumdarstellung, oder Proportionen. Die dargestellten Angaben und Maße entsprechen nicht den Naturmaßen, sind nicht maßstabsgetreu und stellen keine bewilligten Pläne dar. Alle diesbezüglichen Angaben sind daher ebenfalls ohne Gewähr. Bei visualisierten Darstellungen und Fotos kann es sich um Symbolfotos oder fototechnisch optimierte Bilder handeln. Mögliche Abbildungen von Möblierung sind nur Teil des Objektes. Nur wenn diese ausdrücklich angeführt sind, dann zählen sie tatsächlich zum Objekt. Irrtümer sind nicht ausgeschlossen und wir weisen hiermit auf das wirtschaftliche/familiäre Naheverhätnis hin. Der Vermittler ist als Doppelmakler tätig. 

Please note that we are only allowed to process enquiries with your full contact details due to the obligation to provide proof to the owner.

The EU guidelines on the Distance Selling Act, which have been in force since 2014, state that we as estate agents may only send property documents after you have confirmed that you wish us to act as a real estate agent and have been informed of your rights of withdrawal. For this reason, you will receive an e-mail in which you must confirm these points. Only then will the data-filled documents for the requested property be sent to you. You will not incur any costs as a result of this confirmation. The entitlement to commission in the amount of 3% of the purchase price, plus VAT, only arises when the brokered transaction becomes legally effective. No guarantee is given for the completeness, correctness and current relevance of all details and dimensions. All details are without guarantee and are based on information provided by the owner of the property or third parties. Furnishing plans and floor plans are intended to provide a better overview and representation of space or proportions. The information and dimensions shown do not correspond to natural dimensions, are not to scale and do not represent authorised plans. Furnishing plans and floor plans are intended to provide a better overview and representation of space or proportions. The information and dimensions shown do not correspond to natural dimensions, are not to scale and do not represent authorised plans. All information in this regard is therefore also without guarantee. Visualised representations and photos may be symbolic photos or photo-technically optimised images. Possible illustrations of furnishings are only part of the property. Only if these are expressly stated do they actually form part of the property. Errors cannot be ruled out and we hereby draw your attention to the economic/family relationship.

Wir weisen darauf hin, dass zwischen dem Vermittler und dem zu vermittelnden Dritten ein familiäres oder wirtschaftliches Naheverhältnis besteht.

Der Vermittler ist als Doppelmakler tätig.

Lage und Verkehrsanbindung

Knöllgasse, Klinik Favoriten, Zur Spinnerin, Favoritenstrasse, Matzleinsdorferplatz, Gudrunstrasse, Hauptbahnhof, Südtirolerplatz

Lagepläne

Plan 0

Fakten

Objektnummer:
5417/1159
Objekttyp:
Wohnung
Kellerfläche:
4 m²
Wohnfläche:
89,34 m²
Zimmer:
3
Badezimmer:
1
Toilette:
1
Baujahr:
1982
Neubau:
Ja
Zustand:
Sanierungsbedürftig
Verfügbarkeit:
Verfügbar

Preisdetails

Kaufpreis:
295.000,00 €
Kaufpreis/m²
3.301,99 €
Betriebskosten:
127,50 €
Vermittlungsprovision:
Ja
Provision:
10.620,00 € inkl. 20% USt. %
Liftkosten brutto:
26,40 €
Heizkosten brutto:
161,96 €
Warmwasser Kosten brutto:
56,43 €
Weitere Kosten brutto:
35,76 €
Monatlich gesamt brutto:
485,47 €
Monatliche Kosten USt.:
48,37 €
Betriebskosten brutto:
140,25 €
Reparaturrücklage brutto:
93,84 €
Liftkosten netto:
24,00 €
Heizkosten netto:
110,66 €
Warmwasser Kosten netto:
51,30 €
Weitere Kosten netto:
29,80 €
Betriebskosten netto:
127,50 €
Reparaturrücklage netto:
93,84 €

Energieeffizienz

HWB:
71.50 kWh/(m²*a)
fGEE:
1.30
Energieausweisart:
Energiebedarfsausweis
Gültig bis:
25.12.2031

Ansprechpartner

Homa  Jordis
Anfrage
Max. 500 Zeichen
Ich habe die Datenschutzvereinbarung gelesen und verstanden, und ich stimme der Verarbeitung meiner persönlichen Daten wie darin beschrieben zu. *