Villa mit 360° Blick auf Neustift und die Weinberge

Lage: 1190 Wien | | Wien

Beschreibung

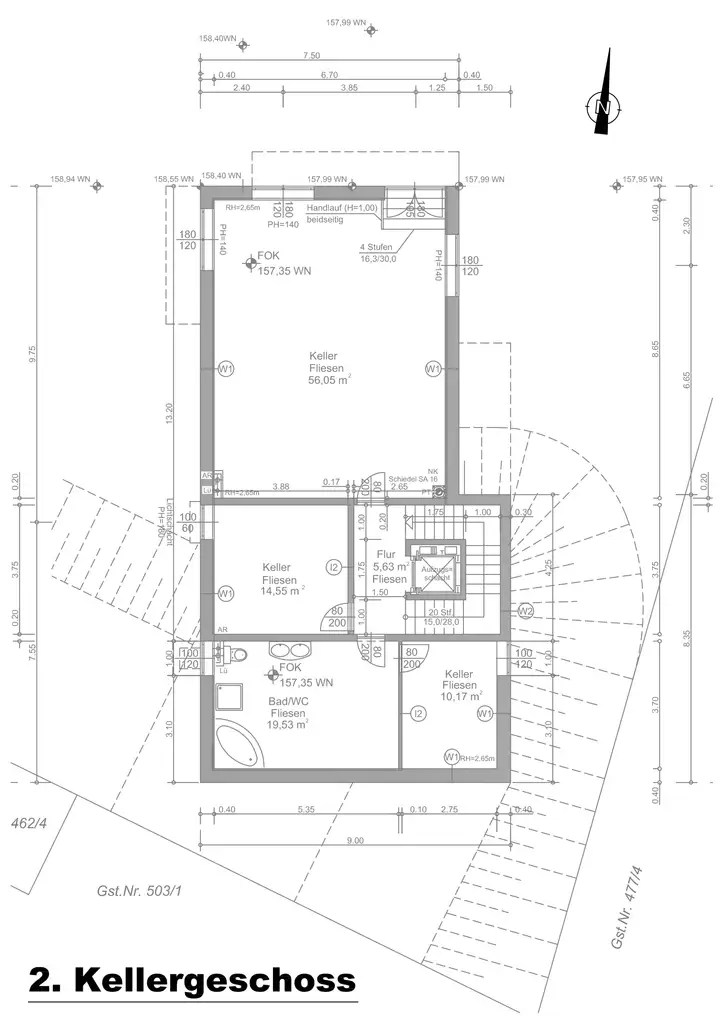
Leben und arbeiten mit einem Traumblick. Eine moderne Villa mit Panormablick über Salmannsdorf, die Weinberge und dem Wienerwald. Das Haus geht über 4 Etagen mit Innenlift. Dieses Objekt liegt besonders ruhig in einer Sackgasse für  Anrainer. Die Villa bietet auf jeder Etage Wohn- und Schlafräume mit dazugehörigen Nassräumen. Im Kellergeschoss, mit ca. 158 m²,  sind ein Fitnessraum, Technik, Sauna, Wellness-Dusche, ein Zimmer für ein Büro und eine Küche/Essbereich mit Ausgang in den 511 m² großen Garten eingerichtet. Im Stockwerk darüber befinden sich der Hauseingang mit Garderobe, Küche, einem knapp 60 m² großen Wohnsalon und einem großen Fenster mit Blick über Neustift am Walde. Seitlich geht es eben auf eine Terrasse mit Grünblick. Im nächsten Stock befinden sich Wohn- und Schlafräume, ein seitlicher Balkon, Möglichkeiten für einen Büroraum und Nassräume. Im Dachgeschoss sind Schlafräume und Gästebereiche untergebracht. Ganz oben befindet sich eine knapp 60 m² große Dachterrasse mit Rund-Um-Blick, einerseits in Richtung Wienerwald und andererseits über die Stadt. Das Haus verfügt in einem Garagenanbau über zwei (Pick-up-fähige) Stellplätze. Energie: Das Haus wird mit Erdwärme (energiesparend) beheizt und es gibt eine PV Anlage am Dach. Beziehbar ist die Villa ab Juni 2025. Besichtigungen sind aber schon möglich.

Infrastruktur: Die nächsten Einkaufsmöglichkeiten, Apotheke und niedergelassene Ärzte sind im nahe gelegenen Neustift am Walde erreichbar. Kindergärten sind ebenfalls in Neustift am Walde angesiedelt. Schulen sind die VS-Celtesgasse und die A.I.S. American International School in Neustift. Nächstgelegene weiterführende Schulen sind das Gymnasium in der Krottenbachstrasse, Samesch-Schule, Hofzeile und in der Billrothstrasse, die jeweils mit der Buslinie 35 A erreichbar sind. 

öffentliche Anbindung: Die nächste Anbindung bietet der Bus 35 A

Restaurants und Heurigenlokale befinden sich in Fussdistanz.

Die nächste Anbindung an die Autobahn A1 ist in wenigen Minuten über die Amundsenstrasse zu erreichen.

https://youtu.be/LDKmqwTmnMc?si=yvX4tibJjWfG5Daf

Bei Interesse und Besichtigungswünschen wenden Sie sich bitte an Frau Mag. Dr. Homa Jordis unter 0043 664 400 22 59 oder unter h.jordis@jordis-immo.at

Sehr geehrte Interessenten, infolge der neuen Verbraucherrechtregelungen sind wir nun seit 2014 gesetzlich verpflichtet, eine Vereinbarung mit allen Interessenten vor der Übersendung eines Exposé mit Adresse bzw. vor der Immobilienbesichtigung zu treffen. Das bislang übliche, unkomplizierte Vorgehen ist durch diese Gesetzesänderung nun nicht mehr möglich. Wir bitten Sie daher um Ihr Verständnis! Ein Energieausweis wird gerne vorgelegt. Alle Angaben sind nach bestem Wissen und Gewissen. Wir weisen darauf hin, dass wir als Einzel-, beziehungsweise Doppelmakler tätig sind, sowie ein wirtschaftliches und/familiäres Naheverhältnis zu den Abgebern bestehen kann.

Wir senden Ihnen gerne auf Anfrage weitere Informationen, Bilder und Pläne.

Courtagepassus

Alle Angaben sind ohne Gewähr und basieren ausschließlich auf Informationen, die uns von unserem Auftraggeber übermittelt wurden. Eine Weitergabe der übermittelten Daten an Dritte ist nicht gestattet. Wir übernehmen keine Gewähr für die Vollständigkeit, Richtigkeit und Aktualität dieser Angaben. Irrtum und Zwischenverkauf vorbehalten. Die Nebenkosten, wie Grunderwerbsteuer, Vertragserrichtungskosten, Notar- und Grundbuchkosten, sind vom Käufer zu tragen. Der Maklervertrag kommt durch schriftliche Vereinbarung oder Inanspruchnahme unserer Maklertätigkeit zustande. Der Makler kann als Doppelmakler tätig werden. Sollte das von uns nachgewiesene Objekt bereits bekannt sein, teilen Sie uns dies bitte unverzüglich mit. Die Courtage in Höhe von 3 % des Gesamtkaufpreises zzgl. gesetzl. USt. ist ausschließlich bei Zustandekommen eines gültigen Rechtsgeschäfts fällig und vom Käufer an die Dr. Homa Jordis E.U. zu zahlen. Es wird auch ausdrücklich auf die Geltung der AGB der Firma Homa Jordis Immobilien  sowie der Nebenkostenübersicht hingewiesen. Hiermit weisen wir allenfalls auf das Bestehen eines familiären und/oder wirtschaftlichen Naheverhältnisses zum Vermieter/Verkäufer hin.

A modern villa over 4 floors with internal lift. This property is in a particularly quiet location in a cul-de-sac for neighbours. The house offers living rooms and bedrooms with bathrooms on each floor. In the basement, with approx. 158 m², there is a fitness room, technical equipment, sauna, wellness shower, a room for an office and a kitchen/dining area with access to the 511 m² garden. On the floor above is the house entrance with cloakroom, kitchen, an almost 60 m² living room and a large window with a view over Neustift am Walde. To the side is a terrace with a view of the greenery. On the next floor there are living rooms and bedrooms, a side balcony, space for an office and wet rooms. The top floor houses bedrooms and guest areas. At the very top is a roof terrace measuring almost 60 m² with panoramic views of the Vienna Woods on one side and the city on the other. The house has two (pick-up-compatible) parking spaces in a garage extension. Energy: The house is heated with geothermal energy and there is a PV system. The villa will be available from June 2025, but viewings are already possible.

Infrastructure: The nearest shopping facilities, pharmacy and doctors can be found in nearby Neustift am Walde.

Kindergartens are also located in Neustift am Walde.Schools are the VS-Celtesgasse and the A.I.S. American International School in Neustift.The nearest secondary schools are the grammar school in Krottenbachstrasse, Samesch-Schule, Hofzeile and Billrothstrasse, all of which can be reached by bus line 35 A.

Public transport connections:The nearest connection is the 35 A bus

Restaurants and wine taverns are within walking distance.

The nearest connection to the A1 motorway can be reached in a few minutes via Amundsenstrasse.

https://youtu.be/LDKmqwTmnMc?si=yvX4tibJjWfG5Daf

If you are interested and would like to view the property, please contact Dr Homa Jordis on 0043 664 400 22 59 or at h.jordis@jordis-immo.at

Dear interested parties, as a result of the new consumer law regulations, we are now legally obliged to make an agreement with all interested parties before sending an exposé with address or before viewing the property. The usual, uncomplicated procedure is no longer possible due to this change in the law.We therefore ask for your understanding!
Brokerage fee clause

All details are without guarantee and are based exclusively on information provided to us by our client. The data provided may not be passed on to third parties. We assume no liability for the completeness, accuracy and timeliness of this information. Subject to errors and prior sale. Incidental costs such as land transfer tax, costs of drawing up the contract, notary and land registry costs are to be borne by the buyer. The brokerage contract is concluded by written agreement or by utilising our brokerage services.The estate agent can act as a dual agent.If the property we have listed is already known, please inform us immediately.The brokerage fee of 3 % of the total purchase price plus VAT is due exclusively upon conclusion of a valid legal transaction and is payable by the buyer to Dr Homa Jordis E.U.Express reference is also made to the validity of the General Terms and Conditions of Homa Jordis Immobilien and the overview of additional costs.We hereby draw attention to the existence of a close family and/or economic relationship with the landlord/seller.

Wir weisen darauf hin, dass zwischen dem Vermittler und dem zu vermittelnden Dritten ein familiäres oder wirtschaftliches Naheverhältnis besteht.

Der Vermittler ist als Doppelmakler tätig.

Lage und Verkehrsanbindung

Salmannsdorf, Ameirican International School, Neustift, Wienerwald

Lagepläne

Plan 0

Fakten

Objektnummer:
5417/1146
Objekttyp:
Haus
Balkonfläche:
350,14 m²
Wohnfläche:
511,86 m²
Nutzfläche:
254,27 m²
Grundstücksfläche:
499 m²
Gartenfläche:
350,14 m²
Badezimmer:
3
Toilette:
4
Baujahr:
2010
Neubau:
Ja
Zustand:
Neuwertig
Verfügbarkeit:
Verfügbar

Preisdetails

Kaufpreis:
2.980.000,00 €
Kaufpreis/m²
5.821,90 €
Vermittlungsprovision:
Ja
Provision:
107.280,00 € inkl. 20% USt. %

Ansprechpartner

Homa  Jordis
Anfrage
Max. 500 Zeichen
Ich habe die Datenschutzvereinbarung gelesen und verstanden, und ich stimme der Verarbeitung meiner persönlichen Daten wie darin beschrieben zu. *